Louver Section Detail .  in this course, we cover the important mechanics of a louver in greater detail. downloadable louvers cad drawings and revit families for building information modeling (bim). a louver is a ventilation product that allows air to pass through it while keeping out unwanted elements such as water, dirt, and debris.  autocad drawing featuring comprehensive plan and elevation views of a louver window with section detail, also. sections and details showing profiles, angles and spacing of louver blades and frames; Unit dimensions related to wall openings. Learn more about pressure drop,.
        
        from mavink.com 
     
        
        sections and details showing profiles, angles and spacing of louver blades and frames; downloadable louvers cad drawings and revit families for building information modeling (bim).  autocad drawing featuring comprehensive plan and elevation views of a louver window with section detail, also. a louver is a ventilation product that allows air to pass through it while keeping out unwanted elements such as water, dirt, and debris. Unit dimensions related to wall openings.  in this course, we cover the important mechanics of a louver in greater detail. Learn more about pressure drop,.
    
    	
            
	
		 
         
    Aluminum Louver Sections 
    Louver Section Detail  downloadable louvers cad drawings and revit families for building information modeling (bim).  autocad drawing featuring comprehensive plan and elevation views of a louver window with section detail, also. sections and details showing profiles, angles and spacing of louver blades and frames;  in this course, we cover the important mechanics of a louver in greater detail. a louver is a ventilation product that allows air to pass through it while keeping out unwanted elements such as water, dirt, and debris. downloadable louvers cad drawings and revit families for building information modeling (bim). Unit dimensions related to wall openings. Learn more about pressure drop,.
            
	
		 
         
 
    
        From mavink.com 
                    Metal Louver Details Louver Section Detail  Learn more about pressure drop,. sections and details showing profiles, angles and spacing of louver blades and frames; a louver is a ventilation product that allows air to pass through it while keeping out unwanted elements such as water, dirt, and debris. Unit dimensions related to wall openings. downloadable louvers cad drawings and revit families for building. Louver Section Detail.
     
    
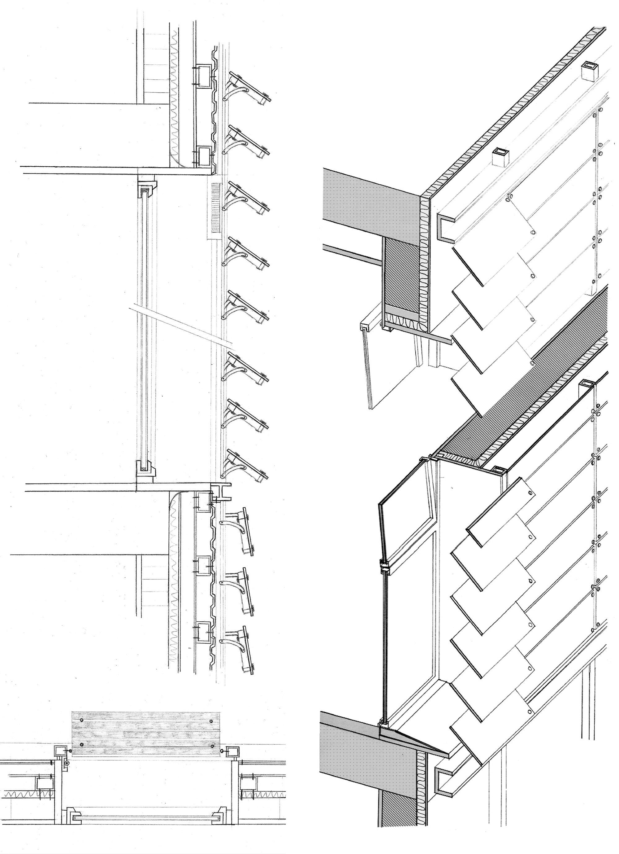
        From jensen-architects.com 
                    AMSV Louver Details 2 Jensen Architects Louver Section Detail  Unit dimensions related to wall openings.  in this course, we cover the important mechanics of a louver in greater detail. downloadable louvers cad drawings and revit families for building information modeling (bim). a louver is a ventilation product that allows air to pass through it while keeping out unwanted elements such as water, dirt, and debris. Web. Louver Section Detail.
     
    
        From tattooremovalinlosangeles.blogspot.com 
                    sand trap louver detail drawing tattooremovalinlosangeles Louver Section Detail  Unit dimensions related to wall openings.  in this course, we cover the important mechanics of a louver in greater detail.  autocad drawing featuring comprehensive plan and elevation views of a louver window with section detail, also. downloadable louvers cad drawings and revit families for building information modeling (bim). Learn more about pressure drop,. a louver is. Louver Section Detail.
     
    
        From www.airbalance.com 
                    6" Deep Insulated Blade Adjustable Steel Louver Louver Section Detail  downloadable louvers cad drawings and revit families for building information modeling (bim).  in this course, we cover the important mechanics of a louver in greater detail. Learn more about pressure drop,.  autocad drawing featuring comprehensive plan and elevation views of a louver window with section detail, also. a louver is a ventilation product that allows air. Louver Section Detail.
     
    
        From www.planmarketplace.com 
                    Aluminum Louver CAD Files, DWG files, Plans and Details Louver Section Detail   autocad drawing featuring comprehensive plan and elevation views of a louver window with section detail, also.  in this course, we cover the important mechanics of a louver in greater detail. Learn more about pressure drop,. downloadable louvers cad drawings and revit families for building information modeling (bim). Unit dimensions related to wall openings. a louver is. Louver Section Detail.
     
    
        From cadbull.com 
                    PVDF coated aluminum louver panels section details are provided in this Louver Section Detail  a louver is a ventilation product that allows air to pass through it while keeping out unwanted elements such as water, dirt, and debris.  autocad drawing featuring comprehensive plan and elevation views of a louver window with section detail, also.  in this course, we cover the important mechanics of a louver in greater detail. Learn more about. Louver Section Detail.
     
    
        From www.pinterest.com 
                    Exterior pivoting louvers on Communication Campus UPF Construction Louver Section Detail  Unit dimensions related to wall openings. a louver is a ventilation product that allows air to pass through it while keeping out unwanted elements such as water, dirt, and debris. sections and details showing profiles, angles and spacing of louver blades and frames; Learn more about pressure drop,.  in this course, we cover the important mechanics of. Louver Section Detail.
     
    
        From mungfali.com 
                    Louver Section Detail Louver Section Detail  Learn more about pressure drop,.  in this course, we cover the important mechanics of a louver in greater detail.  autocad drawing featuring comprehensive plan and elevation views of a louver window with section detail, also. sections and details showing profiles, angles and spacing of louver blades and frames; Unit dimensions related to wall openings. downloadable louvers. Louver Section Detail.
     
    
        From mavink.com 
                    Wooden Louvers Facade Vertical Diagram Louver Section Detail  Unit dimensions related to wall openings. Learn more about pressure drop,. downloadable louvers cad drawings and revit families for building information modeling (bim). a louver is a ventilation product that allows air to pass through it while keeping out unwanted elements such as water, dirt, and debris.  in this course, we cover the important mechanics of a. Louver Section Detail.
     
    
        From cigarettesandcoffeex.blogspot.com 
                    Louver In Masonry Wall Detail cigarettesandcoffeex Louver Section Detail   autocad drawing featuring comprehensive plan and elevation views of a louver window with section detail, also. Unit dimensions related to wall openings.  in this course, we cover the important mechanics of a louver in greater detail. downloadable louvers cad drawings and revit families for building information modeling (bim). a louver is a ventilation product that allows. Louver Section Detail.
     
    
        From www.bibliocad.com 
                    Detail aluminium louver in AutoCAD Download CAD free (37.61 KB Louver Section Detail  a louver is a ventilation product that allows air to pass through it while keeping out unwanted elements such as water, dirt, and debris. Unit dimensions related to wall openings. downloadable louvers cad drawings and revit families for building information modeling (bim). Learn more about pressure drop,.  in this course, we cover the important mechanics of a. Louver Section Detail.
     
    
        From designscad.com 
                    Aluminium Louver DWG Section for AutoCAD • Designs CAD Louver Section Detail  sections and details showing profiles, angles and spacing of louver blades and frames;  in this course, we cover the important mechanics of a louver in greater detail.  autocad drawing featuring comprehensive plan and elevation views of a louver window with section detail, also. a louver is a ventilation product that allows air to pass through it. Louver Section Detail.
     
    
        From www.planmarketplace.com 
                    LOUVER STANDARD DETAIL DRAWINGS CAD Files, DWG files, Plans and Details Louver Section Detail  a louver is a ventilation product that allows air to pass through it while keeping out unwanted elements such as water, dirt, and debris. sections and details showing profiles, angles and spacing of louver blades and frames;  autocad drawing featuring comprehensive plan and elevation views of a louver window with section detail, also. downloadable louvers cad. Louver Section Detail.
     
    
        From www.pinterest.com 
                    Sliding louver shutter design. Adaptable facade. Architecture Louver Section Detail  Unit dimensions related to wall openings. Learn more about pressure drop,. a louver is a ventilation product that allows air to pass through it while keeping out unwanted elements such as water, dirt, and debris. sections and details showing profiles, angles and spacing of louver blades and frames; downloadable louvers cad drawings and revit families for building. Louver Section Detail.
     
    
        From mungfali.com 
                    Louver Detail DWG Louver Section Detail   autocad drawing featuring comprehensive plan and elevation views of a louver window with section detail, also. Unit dimensions related to wall openings. Learn more about pressure drop,. a louver is a ventilation product that allows air to pass through it while keeping out unwanted elements such as water, dirt, and debris. sections and details showing profiles, angles. Louver Section Detail.
     
    
        From www.planmarketplace.com 
                    Aluminum Louver CAD Files, DWG files, Plans and Details Louver Section Detail  a louver is a ventilation product that allows air to pass through it while keeping out unwanted elements such as water, dirt, and debris. downloadable louvers cad drawings and revit families for building information modeling (bim). sections and details showing profiles, angles and spacing of louver blades and frames;  autocad drawing featuring comprehensive plan and elevation. Louver Section Detail.
     
    
        From mavink.com 
                    Metal Louver Details Louver Section Detail  sections and details showing profiles, angles and spacing of louver blades and frames;  in this course, we cover the important mechanics of a louver in greater detail. a louver is a ventilation product that allows air to pass through it while keeping out unwanted elements such as water, dirt, and debris. Unit dimensions related to wall openings.. Louver Section Detail.
     
    
        From emileo-surroundedbyidiots.blogspot.com 
                    louver window detail drawing emileosurroundedbyidiots Louver Section Detail  a louver is a ventilation product that allows air to pass through it while keeping out unwanted elements such as water, dirt, and debris. Unit dimensions related to wall openings. sections and details showing profiles, angles and spacing of louver blades and frames;  autocad drawing featuring comprehensive plan and elevation views of a louver window with section. Louver Section Detail.